Complesso residenziale. Pescara Nord, 100 a metri dal mare. Classe Energetica A

  • Sportive
  • Sportive
  • Sportive
  • Sportive
  • Sportive
  • Sportive
  • Sportive
  • Sportive
  • Sportive
  • Sportive

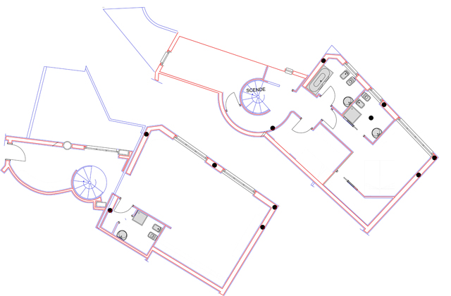
Appartamento interno 21 Scala A. Ponte.

Descrizione e piantina

Appartamento sulla struttura di acciaio del "ponte". Due livelli composti da ingresso ed open space con angolo cottura, tre stanze, ripostiglio, tre servizi e terrazzo.

Piano quarto e quinto scala A.

 

Clicca sull' immagine per la piantina dell'appartamento vuoto.

Capture
Capture

Come arredarlo

Ecco una proposta di arredamento per l'appartamento.

Cucina a vista con colonne, zona pranzo, zona soggiorno, camerette con armadio e scrivania, matrimoniale con cabina armadio.

 

Clicca sull' immagine per la piantina dell'appartamento arredato.

Foto panoramiche

Disponibili a breve.

 

Clicca sull' immagine per visionare foto dell' esterno in versione panoramica.

Capture

Contatti

Per eventuali visite, delucidazioni o richieste non esitare a contattarci direttamente.

Siamo a tua disposizione!

Ghardaia

  • Via P. Pasolini 5/7 - via A. Pazienza 3
  • Pescara

Telefono

+39 331 2646721